
THEOIDANDNEW|MEET
逢新感旧
抚今怀昔
撰文丨薄小飞
项目类型|改造甜品店
设计师|霍扬文Evan
王路Diudiu/李源溪Sissi
采访地点|大宅会所
CaramelMonster|私房甜品烘培工作室|
本案|老住宅改造甜品工作室

爱过的老歌,你能记得几首,
在这里,时光一别多年,
本案位于西安西郊的立交桥附近的老小区,
七八十年代的老房子呈现原生态的古旧,
小区里的住户群体为老人,
时间在这里行走的仿佛很缓慢
只有许多老树静静相伴,
处在老楼最底层的50㎡的空间
成为设计师们的设计主场,
消弭掉阴暗,开一个“时代魔盒”,
甜品的生机感治愈时光裂痕,
用幸福感冲突年代痕迹。
▼结构解析图


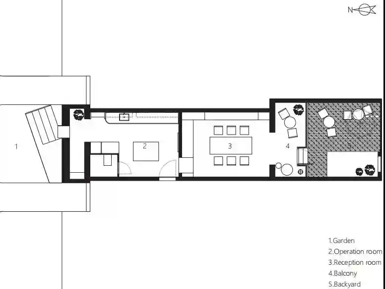
▲平面布局图
业主诉求:Appeal
空间性质作为甜品创作工作室,
要满足创作、社交,
偶尔休憩、经常发挥甜品创意。
装修成本可控。

▼第一区域-创作空间
CREATION



因为建筑本身
已经有了很长的使用经历了,
原本的大改建方案是不行的,
原始的狭长空间,
不仅面积小,隔墙也非常多,
开在楼洞里的入户门
也不能为空间带来多余的采光,
昏暗的空间被压在旧建筑的最底层。
设计师将原始空间里
过多的隔墙部分拆除、部分打开,
让更多的光线进入,
再放飞一下思路,
立面造新门,开一扇窗,
即使几平米,也是庭院精神,
斜角的设计方式,纯白新生在旧建筑中,
满足各个角度的视觉呈现,
台阶成为外摆的“卡座”,
窗承载了外卖窗口的功能
亦成为探索甜品店的”镜头“,
▼第二区域-社交空间
-SOCIALCONTACT





从主理人的创作空间递进于此,
设计师将空间创造更多的交互性,
让空间拥有一体融合的动态感,
橙黄色的入口进入第二区域,
纯粹的白和自然的木质感是主色调,
与本店“焦糖怪兽”的品牌缕缕相连,
行于此,
迷于事,
耽于美,
归于鲜。




自由的想象,
自由的表达,
才是空间唯一重要的东西,
即使空间不大,
情绪的格局要很大,
就像甜品小小的一口,
也能带来甜蜜的全世界,
将社交空间延展,
空间之间开始相互关照,
这个小小的角落,
有着诗意栖居的感受,
暖黄灯光、水泥地面
怀旧相框和一个柔柔的单沙发,
就像甜品店和这个建筑,
一起融合,引发生机,
在这里,每一天都很满足,
每一年,都很丰盛。


原本逼仄的后院,
用来放置杂物,
设计师将这些统统清空,
拆掉原本的窗户,
墙体全部打开、加固,
阳光大把大把的溜进来,
让甜品和物件都晕染上了暖暖的香气,
设计了中轴旋转门,
白色和黑色的门框串联内外,
旋转门90度打开,
室内外贯穿一气,
使用空间被拉长,
室内外完全的互动,
与时光纠缠,
与甜品缠绵。
▼手中日月长
-TIME






似腻还成爽,
才凝又欲飘,
一天只做一件事,
做的时候,
心眼之中只有甜,
忘了周遭,
忘了时间.

TA们:
这是一个从设计到全案呈现仅花费不足5万元的极限挑战项目
设计师们和主理人的相遇-
甜品店主理人是95后
本案设计团队成员
均毕业于海外知名院校
曾参与过许多国内外知名设计项目
同样的留学经历,
同样的坚持初心,
她们于对于艺术和专业挑战的钟情,
那些深藏于心的小美好,
让这个特别的设计变得很甜。
今夜美丽的月光,你看多好!
骑上甜甜圈甜蜜入梦。
ABOUTPROJECT

PROJECTINTRODUCTION:
项目名称/Name|CaramelMonster
项目类型/Type|甜品店
项目位置/Location|西安市沣惠小区
项目面积/Area|50㎡
完工时间/Time|2020.10
设计单位/Unit|HybridHouseDesign融宅设计
方案设计/霍扬文EvanHuo
深化设计/王路Diudiu,刘超Jam
软装设计/李源溪SissiLi
项目摄影/I‘atelierdeLEON
ABOUTDESIGNER


李源溪Sissi:合伙人|艺术媒体总监
热衷于全世界搜罗家居产品和艺术品;
霍扬文Evan:合伙人|空间设计总监

热衷改造身边的空间并赋予其新的活力和可能性;
王璐Diudiu:合伙人|室内设计总监
热衷于打造独一无二的室内场景且专注细节;
ABOUTHybridHouseDesign
HybridHouseDesign融宅设计——由美国海归设计团队创立,我们秉承国际化前沿的设计理念,融合东西方美学,深入挖掘每位业主的经历、审美、爱好以及渴望。不高谈阔论设计风格,从业主内心需求和点滴日常出发,构建真正属于业主的空间。
将国际先锋设计服务流程与本土客户偏好相结合,HybridHouse独创审美解构、工地管理、预算管理三大服务体系。用专业度加乘精细化管理,从设计伊始到项目落地,每个环节层层把关,百分百用心交付隽永的家宅。
在商业空间领域,HybridHouse在创新的设计语言以外,切身从消费场景出发,为客户提供竞品分析、商业布局、动线优化等多维度商业空间解决方案,通过设计的力量提升商业空间的经济收益。
好的设计源于细节,好的细节由一砖一瓦、一瓶一画共同构建。优秀供应商对成就优秀设计的重要性自不待言。HybridHouse充分利用海外资源优势,打通全球顶级供应商资源,并采用“全面比价,全球采买“的选购策略,空间的极致美和预算的最优化,可以兼得。
HybridHouse奉行专业至上,审美先行。
美是理解,美是融合,是过去生活的汇总,是未来梦境的依托。
美是你,也是我。